-
融邦中山苑 均价:8000元/m² 计算器
开盘日期:
牡丹区待售商住
- 楼盘详情
-
销售热线:5361199开盘时间:交房时间:物业类型:商住建筑类别:多层 小高层 高层装修状况:毛坯住户数:容积率:4.5绿化率:30%停车位:交通路线:开发商:预售许可:物业公司:物业费:楼盘介绍:
项目南邻牡丹区主轴线长江路,北靠中山路,西临府南街,东侧规划支路与和平路相邻不足500米。本项目用地范围属菏泽新城区规划(城市发展方向东进、南拓)“一城四片”结构发展中的城市核心区,属菏泽市开发热点区域。以项目基地为起点,距菏泽最好的小学—市实验小学200米,阜南街打通后,距菏泽市行政中心—市政府500米,距市区核心地标商业—银座800米;处于菏泽城市主干道中华路、长江路、牡丹路、和平路的环形路网内,四面环路,周边道路四通八达,12、16、22、23、48、50、106路等多路公交车直达,交通十分便捷。周边(1Km半径内)居住氛围浓厚,商业、生活配套完善,教育、医疗、金融等各类城市配套资源一应俱全,长江路、和平路、中山路、府南街都是城市商业、生活配套发展成熟的路段,三信购物广场、生活超市、蔬菜市场以及中山路餐饮街等环比周边,北侧银座商城、新苏天美、茂业百货各种品牌店、专业店应有尽有;沿长江路过街天桥对过即是大市实验小学 ,距离菏泽市中医院(中华路分院)、开发区中心医院也不足1公里,生活配套设施相当齐全。
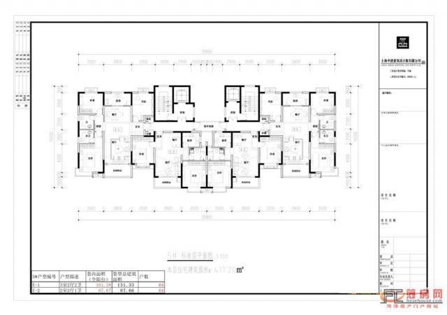
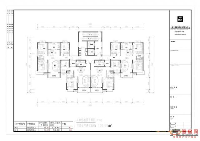
融邦中山苑项目共规划7栋30—33F景观高层住宅,共约12万方,1137户。北侧三栋33F高层住宅形成隔寒降噪的轮廓线,社区中央退留景观广场,南侧建筑相互咬合,整体布局呈现出聚气纳财的围合之势。31—35米超宽楼间距设计,更有个别楼座达到了50米以上,最大程度的保证了居住的日照与采光。拥有8度抗震标准的精工建筑,力创新古典主义建筑,体现时尚与典雅的现代文化与中式情怀。社区在府南街及东侧支路规划两个主出入口,与外部主干道完美衔接,社区内部实现完全人车分流交通体系,消防车道、人行道、车行景观道互不影响,充分保证老人和儿童的出行安全。在社区主入楼5#号楼南侧、1#号楼北侧规划2个地下车库入口,社区车位配比达到1:1.5以上(地上、地下停车位2111个),充分满足业主停车所需。“一核、一环、双轴”景观体系,5000平米中央园林,戏水平台、草坪、景观小品交织,形成生态鲜氧社区。除必要的设备管理用房及消防设计外,社区配套双语幼儿园、少年会所、文化活动站等服务设施,满足社区内部业主教育、休闲、社交等一切生活所需。通信系统、可视对讲系统、电视监控、报警系统等科技化智能管理系统的引入,无缝保证业主的居住安全。住宅户型从70—96㎡两居室到91—131㎡三居室,均为户户通风、间间采光的全明户型,内部柔性空间布局合理,地暖与新风系统入户,充分体现出居住的尊贵与典雅。引进集中式太阳能热水系统,由市政热网提供高温采暖热水,经小区换热站提供给住户。解决传统高层太阳能系统不能满足客户舒适性热水需求的缺点。本项目创新性的引入三级物管体系,聘请星级物业公司,打造微距式配套服务,提高社区安全感,更强化了组团居民的归属感和邻里感,营造出高雅居住品质。
展开 - 主力户型
- 位置及周边
- 价格走势
- 楼盘相册




