-
菏泽城区这3个项目,规划设计方案公布!现征求意见
菏泽房产网 2024-10-18 18:09:41 3833 0 -
菏泽房产网(菏房网)讯:
菏泽市自然资源和规划局
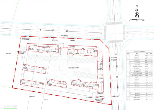
关于牡丹区曹州路片区建设项目
(仓房雅园)规划设计方案
征求意见的公告

项目名称:牡丹区曹州路片区建设项目(仓房雅园)规划设计方案
项目位置:菏泽市牡丹区环堤公园以东、曹州路以南、太原路以西
工程概况:
规划用地面积45434.27平方米。住宅用地总建筑面积265397.89平方米,其中地上建筑面积193784.19平方米,容积率4.24,建筑密度25.2%,绿地率30%,机动车停车位1699个,地上机动车停车位174个,地下机动车停车位1525个,非机动车停车位3071个。六班幼儿园(含42个托位)用地面积2931.76平方米,幼儿园总建筑面积2728.02平方米,容积率0.94,建筑密度31.02%。
建筑退线:
建筑高度<24米的,退曹州路红线16米,退太原路红线10米,退南侧用地红线10米,退环堤公园绿线3米。建筑高度>24米的,退曹州路红线25米,退太原路红线36米,退南侧用地红线23米。建筑退让环堤公园绿线1米。六班幼儿园建筑退太原路红线20米,退南侧用地红线10米,退北侧、西侧用地红线6米。
配套设施:
物业管理用房951.14平方米,社区居家养老服务用房286.86平方米,社区党建服务中心421.82平方米,城管执法53.99平方米,治安管理84.64平方米,便利店167.49平方米,室内菜市场510.67平方米,公共厕所40.75平方米。
日照分析情况:该项目内、外部均满足日照要求。
征求期限:2024年10月14日--2024年10月22日

菏泽市自然资源和规划局
关于公元里规划设计方案
征求意见的公告

项目名称:公元里规划设计方案
项目位置:菏泽市牡丹区曹州路以南、点将台路以西、大堤以东、环翠苑小区以北
工程概况:
规划用地面积为25525.50平方米,规划总建筑面积65017.68平方米,其中地上建筑面积50377.16平方米,计容建筑面积50377.16平方米,容积率1.98,建筑密度26.0%,绿地率35.1%,户数242户。
机动车停车位328个,其中地下机动车停车位246个。非机动停车位593个。建筑退线:建筑高度<24米的,退曹州路红线15米,退点将台路红线15米,退环城大堤绿线15米,退南侧用地红线10米;建筑高度>24米的,退曹州路红线20米,退点将台路红线24米,退环城大堤绿线20米,退南侧用地红线27米。
配套设施:
物业管理用房260.08平方米,文化活动站500平方米,社区办公300平方米,城管执法50平方米,治安管理50平方米,便利店100平方米,公共厕所30平方米。
日照分析情况:该项目内、外部均满足日照要求
征求期限:2024年10月14日--2024年10月22日

菏泽市自然资源和规划局
关于洪福嘉苑车库及物业管理用房
调整征求意见的公告
调整申请:洪福嘉苑车库及物业管理用房调整
调整内容:
1、地下车库范围增加,车库面积增加2827平方米;
2、2#楼一层局部由住宅调整为物业管理用房,物业管理用房面积增加10平方米;
3、调整后地上建筑面积不变,地下建筑面积增加2827平方米,住面积宅减少10平方米,物业管理用房面积增加10平方米,容积率不变,建筑基底面积不变,绿地率不变。
征求期限:2024年10月14日--2024年10月22日
菏泽市自然资源和规划局
2024年10月14日
现房、准现房、特价房
尽在菏泽房盟团购中…
菏泽房盟团购微信!加好友需注明:购房或团购字样
报名咨询电话:0530-5361199

- 资讯排行